Vendredi, 10 septembre, 2021
Chez NOLITE TIMERE Metallerie Industrielle, nous avons plusieurs cordes à notre arc !
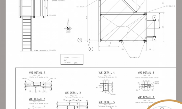
Pour vos projets de passerelles (acier, alu ou inox), nous pouvons :
- les étudier et vous fournir des plans détaillés
- les fabriquer dans nos ateliers
- les monter sur place
Nous savons également concevoir d'autres moyens d'accès, pour permettre la mise en sécurité et/ou conformité des accès chez les industriels.
Nous sommes toujours heureux de pouvoir contribuer à l’amélioration de la sécurité au travail de nos clients !










